Casa indipendente
Rif.1195villa-indipendente
115.000 €
Trasloca casa in tutta italia
Ricevi velocemente preventivi gratuiti da imprese di trasloco affidabili e selezionate.

Ristruttura questa casa al miglior prezzo
Ricevi velocemente preventivi gratuiti da imprese di ristrutturazioni della tua città.
Caratteristiche
Prezzo
115.000€
Tipologia
Villa-indipendente
Superficie (mq)
120m2
Locali
5
Box/Posto auto
NO
Piano
1
Piani totali
1
Condizione
Stato-originale
Classe Energetica
N.d.
Numero bagni
1
Balcone/Terrazzo
SI
Località
Via Vincenzo Gioberti, 1, Francavilla Fontana, BR, Italia
Descrizione
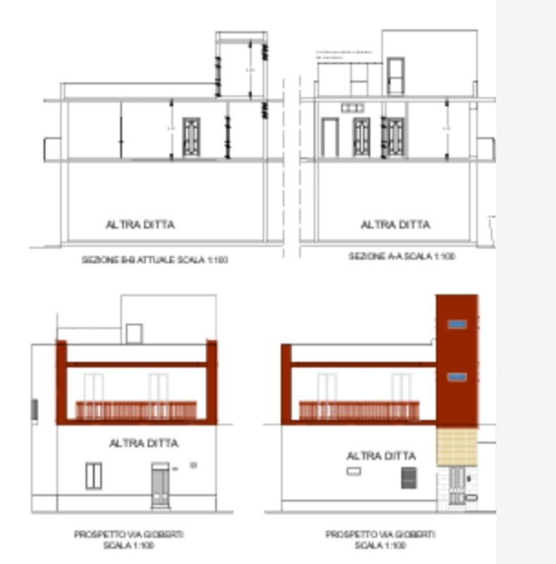
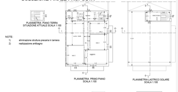
A pochi minuti a piedi dal centro storico, in una zona comoda al mercato settimanale, alle poste centrali, con la presenza di parcheggi NON a pagamento, all'entrata/uscita dal paese verso la superstrada e molta altre comodità, propongo la vendita di una casa indipendente angolare (libera su tre lati) tutta su un piano con ingresso in Via Vincenzo Gioberti, 1. L'abitazione che è al primo ed unico piano, vi conduce attraverso le scale ad un'entrata finestrata a cui corrisponde un lungo corridoio da dove poi, si accede a tre ampie camere da letto, un soggiorno davvero grande, una cucina abitabile con cucinotto ed un bagno entrambi finestrati. La casa offre ambienti molto grandi e luminosi , infatti ogni camera ha una portafinestra che conduce su balconi lunghi e abitabili. La residenza inoltre offre diversi spazi comodi come un ripostiglio adatto alla rimessa di cose da conservare, un sottoscala che può essere usato come legnaia o altro. Salendo ancora le scale, si entra in una stanza finestrata comoda come lavanderia. Da qui si accede ad un'ampia lamia che spesso diventa zona relax per serate spensierate sotto il cielo o sotto un romantico gazebo. La posizione angolare regala luminosità, ariosità agli ambienti e soprattutto un'ottima privacy, vista la sua indipendenza angolare. Gli esterni sono stati ristrutturati da poco e per le comode metrature, ci si può concedere una piacevole personalizzazione degli ambienti o, per chi ha la necessità di trasferirsi con una certa urgenza, la casa è abitabile da subito. L'abitazione presenta comodità importanti come due climatizzatori recenti ad inverter con pompa di calore, canna fumaria per poter inserire una stufa e tapparelle motorizzate. Contattatemi dopo le ore 16,00. Una casa generosa a euro 115.000 TRATTABILI.Classificazione energetica
- G
- F
- E
- D
- C
- B
- A1
- A2
- A3
- A4
Classe energetica non disponibile
Mappa
Casa indipendente
Altri annunci che potrebbero interessarti
Diventa partner
Siamo alla ricerca di partner in tutta Italia per offrire servizi ai nostri clienti.
Contattaci subito






























